THE BACKYARD

  • Description

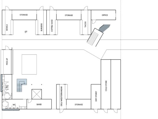
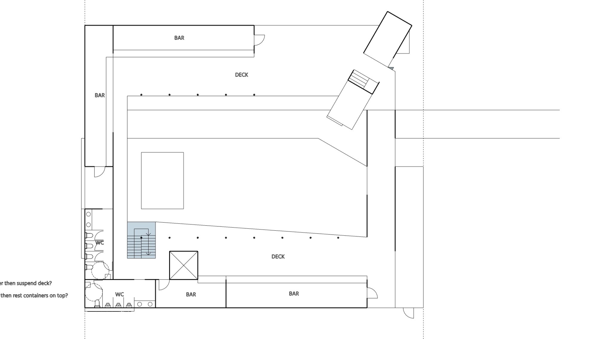
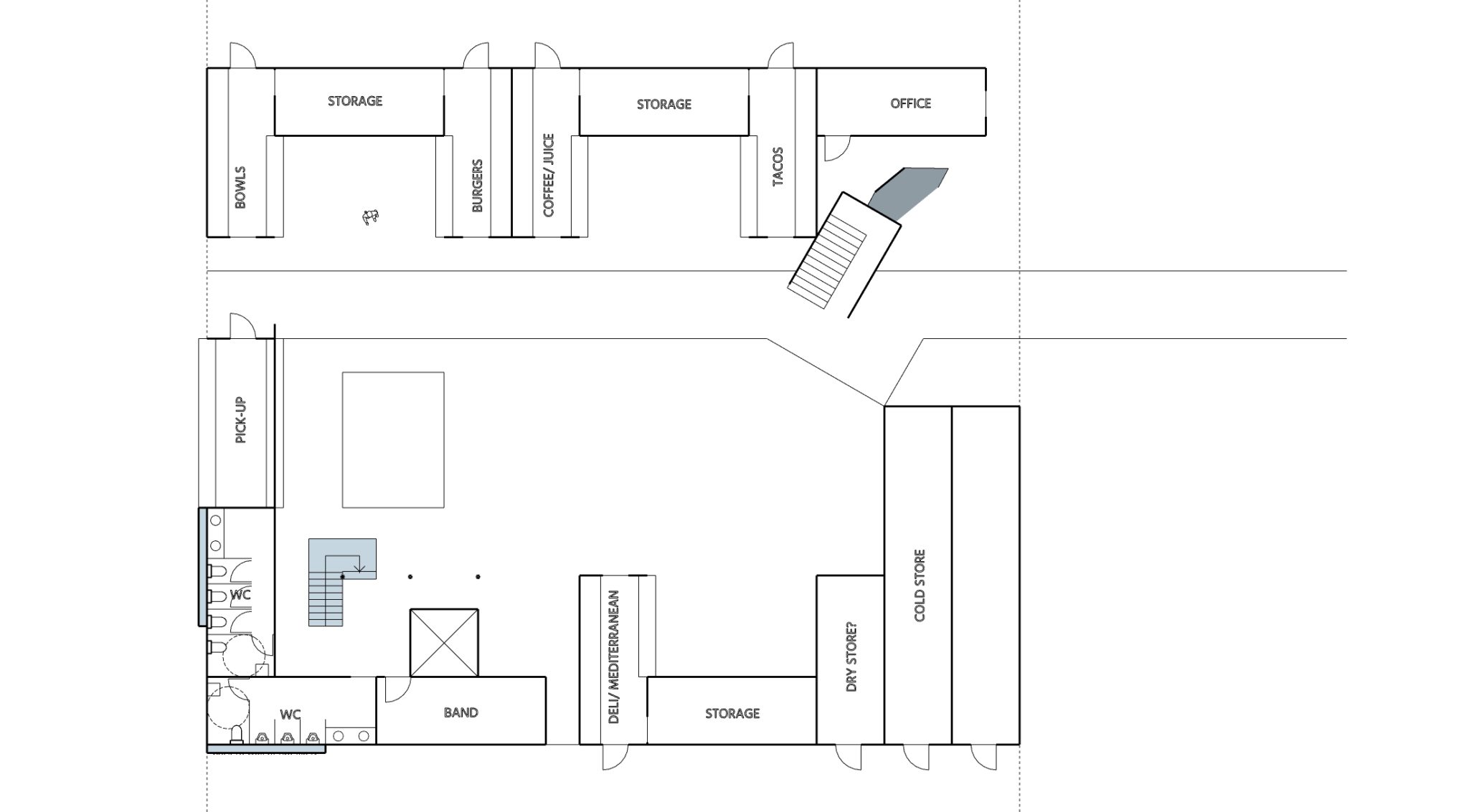
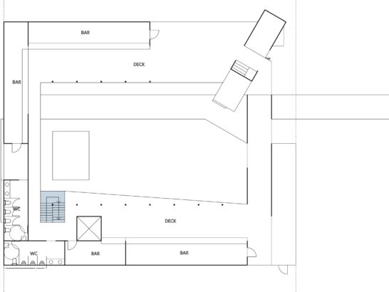
    This project is conceived as a lushly landscaped outdoor space featuring repurposed shipping containers. For decades, shipping container architecture has been popular across the globe as a sustainable design solution by repurposing such containers to create and design new intentional ways for buildings.

    A low-density and low-rise development, THE BACKYARD is a series of linked container spaces located in the heart of Flagler Village, Fort Lauderdale’s arts and cultural hub, where the community can gather to eat, drink and socialize in a dynamic environment.

    Over the years, AQUI and the GLAVOVIC STUDIO design team have traveled across the world, visiting shipping container complexes. These visits have inspired and influenced the approach and concept behind THE BACKYARD. For instance, the remarkable Boxpark in London, UK, exemplifies this design thinking as a veritable solution where shipping containers provide multi-uses— the ground-floor has retail spaces and the second-level has venues for people to enjoy food, drink and entertainment. The Napa Yard — Oxbow Gardens in Napa, California, has converted shipping containers for the gardens distillery and eateries.

    In recent years, South Florida’s arts and entertainment scene has embraced the shipping container aesthetic and this project is intended to be a noteworthy addition to Flagler Village. The South Florida experience will be punctuated with green space filled with native plants in the semi-enclosed, shaded landscaped courtyard to the east of the project’s site.

    THE BACKYARD is currently under review with the Development Review Committee of Fort Lauderdale.

  • Gallery

  • Related Projects