METRO HOLLYWOOD

  • Description

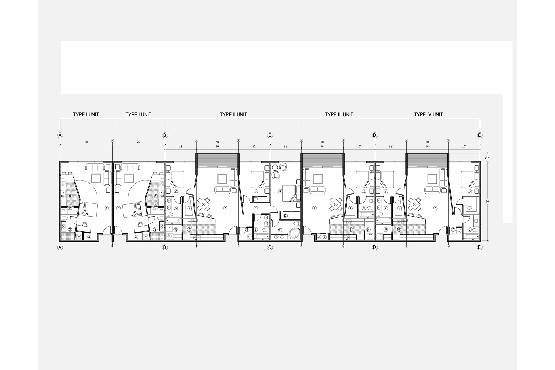
    METRO Cut Sheet

    METRO Hollywood is a community development that creates an urban node catalyzing redevelopment of future blocks to the north and south. The project was oriented towards residents desiring to live near downtown Hollywood, including families,  first-time home buyers, and creatives. It was designed as a mixed-used, townhouse/loft/live-work community located on the north end of a block delineated by Adams Street to the north, Dixie Highway to the east, a mid-block residence to the west, and Washington Street to the south. The architecture recognizes its origins, both in the tradition of modern design in South Florida, as well as its local context of urban and industrial living, along a rail corridor. Maximizing color, light and landscape through material and courtyards for a variety of public and private experiences. METRO Hollywood uses each unit to express the value of the individual as part of an integrated whole. Color coding the facades creates an urban iconic identity with deep shaded balconies using tunnel form construction, glass fronts, and street-front-walkable access. A range of unit types from live-work loft apartments to traditional townhouses with garages, create a rhythmic visual cadence and gateway to the neighborhood.

  • Gallery

  • Related Projects